marta_1 
Lo schema a sinistra rappresenta il mio primo ricordo: in particolare, si tratta di un ricordo sonoro e, in parte minore, visivo. Nella memoria figuro io in braccio a mio padre, che durante la notte mi canta una ninna nanna andando avanti e indietro per il corridoio di casa. Nello schema, le due linee convergenti rappresentano i contorni del corridoio, mentre la linea ondulata richiama il movimento di mio padre e, simbolicamente, la dolcezza della musica cantata da lui, che mi culla affettuosamente.
Il secondo schema, invece, rappresenta il mio ricordo visto dall'alto e la definizione di una direzione, che è biunivoca, quasi oscillatoria. Per quanto concerne il punto di vista, in entrambe le raffigurazioni esso si colloca al di fuori del disegno, perchè, nonostante io ricordi di essere in braccio a mio padre(e quindi dovrei essere all'interno del disegno), la mia memoria si concentra soprattutto sulla componenente sonora; quindi nella rappresentazione ho preferito raffigurare più che altro la musica che sentivo. I contorni del corridoio servono per la definizione dello spazio.
Come primo riferimento, in relazione al mio ricordo d'infanzia, ho scelto la musica. Pertanto, riporto delle immagini che la simboleggiano e che la
associano alla natura, contesto dove dovremo inserire il nostro edificio. Le seguenti immagini sono tratte dal sito www.deviantart.com
Come secondo riferimento, in relazione al contesto progettuale, considero la natura, che, dal mio punto di vista, è rappresentata in maniera entusiasmante da Monet ne "Il giardino di Giverny", dipinto che ho scelto, in particolare, per la vivacità e la bellezza dei colori.
Per la successiva elaborazione di regole da utilizzare nella mia progettazione, riporto immagini di vari edifici, che possono diventare, secondo me, espressione dei miei obiettivi. Questi ultimi vengono da me esplicitati in tre aggettivi caratterizzanti: luminoso, dinamico e forte.
Sterling and Francine Clark Art Institute, Tadao Ando
Church of Light, Tadao Ando
Santa Barbara House, Richard Meier
The Espirito Santo's House, MMBB Arquitetos
The Shell House, Kotaro Ide
Ibere Camargo Museum, Alvaro Siza
New York University, department of philosophy, Steven Holl
Cleveland clinic for brain health, Gehry
Partendo dai miei tre aggettivi caratterizzanti, scelgo delle immagini relative al mondo naturale che possano esprimere, secondo la mia interpretazione, una regola di trasformazione necessaria alla progettazione. La suddetta regola mi permetterà di plasmare l'esistente, in modo da ottenere l'obiettivo che mi sono prefissa.
Aggettivo: dinamico
Come: si moltiplica
Regola: la moltiplicazione deve creare disomogeneità , così come le onde del mare, nonostante la loro somiglianza, si ripetono sempre in maniera diversa. In particolare, moltiplico lungo delle rette parallele a un piano fissato. Fatto ciò, affianco alla "zona di moltiplicazione" una zona del tutto priva di elementi moltiplicati, così da creare squilibrio.
Aggettivo: luminoso
Come: si divide
Regola: la divisione deve avvenire in maniera evanescente, nel senso che deve essere visibile il meno possibile, così come lo è la "suddivisione" del cielo che è costituita dalle nuvole. Qualora sia indispensabile tale divisione, utilizzo dei piani verticali disposti a 90° limitando al minimo le chiusure totali tra una parte e un'altra, cercando, quindi, di ricavare sempre delle aperture permanenti (cioè senza porte o altre chiusure).
Aggettivo: forte
Come: si buca
Regola: utilizzo parallelepipedi e/o "parallelepipedi" con facce inclinate a 45° e ricavo il buco per sottrazione boleana.
Aggettivo: forte
Come: inizia e finisce
Regola: il passaggio dall'inizio alla fine è segnato da un cambiamento repentino, quale è, in natura, uno strapiombo che separa l'abitato dal mare. Questo cambiamento si ottiene tramite l'utilizzo di materiali differenti e il gioco tra parti cieche e parti bucate.
Aggettivo: luminoso
Come: si connette
Regola: la connessione deve creare un progressivo restringimento o, di contro, una progressiva espansione. è questo il movimento definito da una spirale.
Aggettivo: dinamico
Come: si piega
Regola: creo un angolo di 90° o 120°. L'angolo può essere smussato, qualora sia accostato ad altre superfici.
Aggettivo: forte
Come: si taglia
Regola: uso un piano verticale e/o orizzontale per tranciare i volumi.
1)stato iniziale
2) come si modifica (dinamico)
3) come si taglia (forte)
4) come si buca (forte)
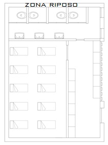
Nella prima fase, opero l'associazione dei miei tre aggettivi allo schema del mio ricordo. Da questa associazione, nasce il progetto, che si concretizza in tre elementi. La mia interpretazione dello schema mi porta ad associare all'aggettivo "forte" una componente interrata, per quanto riguarda la scelta architettonica, e la zona riposo, per quanto riguarda la scelta funzionale; all'aggettivo "dinamico" le scale, come scelta architettonica, e la connessione tra i due edifici, come scelta funzionale; all'aggettivo "luminoso" una componente sopraelevata e con giochi di luce, per quanto riguarda la scelta architettonica, e la zona ristoro e gioco, per quanto riguarda la scelta funzionale.
In particolare, per quest'ultima componente, concettualmente ho preso come riferimento l'idea della "casa sull'albero" ed è per questo motivo che ho utilizzato legno, parete e copertura vegetale, come elementi principali. Questo mi garantisce anche un preciso rapporto di fusione con il contesto naturale circostante.
(nell'ordine, Loblolly House di Kieran Timberlake Architects; Giardino verticale ad Avignon di Patrick Blanc)
L'altra idea fondamentale, derivante dal mio ricordo, è quella relativa alla musica. Per rendere questo concetto all'interno del mio progetto, ho utilizzato dei giochi di luce garantiti dalla presenza di sistemi di schermatura esterna costituiti da travetti in legno. Inizialmente, avevo pensato di creare questi effetti attraverso un progressivo restringimento di finestre poste in serie. Tuttavia, la sovrapposizione di piani(quello della finestra e quello della schermatura) danno una maggiore dinamicità anche all'esterno. Per questo motivo, oltre al fatto che è sempre preferibile schermare una vetrata, ho optato per la seconda ipotesi.
Fondamentalmente, dal problema della luce, elemento essenziale per il raggiungimento dei miei tre obiettivi, è partita la rielaborazione in fasi successive del progetto.
Fase 1
Questa prima raffigurazione nasce dai concetti che ho espresso precedentemente e dalle mie regole di trasformazione.
Fase 2
Questa seconda raffigurazione si struttura in vari passaggi. Innanzitutto, si sviluppa dalla mia nuova intenzione di collegare la copertura con i pilastri che reggono la piattaforma in legno. Da ciò derivano le strutture "arcuate" che collegano l'edificio al terreno. Queste accentuano ancora di più l'idea di "casa sull'albero", quasi come se fossero delle radici che si innestano nella terra. A quel punto, ho visto questa struttura come un sostegno per elementi di schermatura, che garantiscono anche la possibilità di introdurre vetrate più grandi, instituendo così un rapporto con l'esterno più forte e diretto. Da queste schermature, nascono tutti i giochi di luce a cui ho accennato in precedenza. Alcune di queste sono verticali in modo da poter rimarcare ulteriormente il rapporto con il terreno, dato che si innestano su di esso. Un altro passaggio consiste nell'aggiunta di un volume totalmente vetrato al piano terra. Qui ho collocato la zona gioco proprio perchè c'è un rapporto immediato tra natura e interno dell'edificio.
Fase 3
Le modifiche della fase finale sono dettate dalla definizione precisa delle piante interne, da cui derivano l'aggiunta di alcune finestre e l'allargamento dell'edificio per ragioni prettamente logistiche. Inoltre, all'esterno della zona riposo ho preferito togliere il legno e ho scelto lo stesso materiale chiaro e grezzo che ho utilizzato per le scale e per alcuni dei muri della zona ristoro. Ho preso questa decisione motivata dal fatto che la presenza delle schermature in legno affiancata a un rivestimento ligneo appesantiva molto l'edificio. Inoltre, come ho detto, il tema della luce è fondamentale. Dato che questa parte del mio kindergarten, per ragioni funzionali(zona riposo), si prestava maggiormente all'assenza di luce piuttosto che alla sua presenza, ho deciso di esprimere il suddetto tema attraverso un preciso trattamento dei materiali esterni; un materiale chiaro come quello che ho scelto mi aiuta ad esprimere quel "luminoso" che deve pervadere tutto il mio progetto.
