TERZO PROGETTO ANNA 
I primi esempi di casa a patio li ritroviamo nella civiltà egizia, in cui i singoli ambienti dell'abitazione si affacciavano su spazi aperti interni. Le parti della costruzione si sviluppavano su un asse, considerato come centro generatore. La tipologia tipica era costituita da un singolo piano sovrastato da una terrazza.
Nella civiltà greca le case a patio erano inserite in una maglia ortogonale.
Con la Roma Repubblicana, successivamente con il Cristianesimo e il Medioevo, tale tipologia subisce continue e notevoli trasformazioni. Solo nell'ambito del Movimento Moderno la casa a patio viene ri-interpretata e riproposta in chiave Mies van der Rohe. Negli anni 20'-30' il patio non è più una spazio centrale della costruzione, ma è più una sorta di giardino privato accostato al nucleo della casa e protetto da un muro esterno. Con la casa a patio Mies van der Rohe riesce a superare una contraddizione: quella esistente da sempre tra edificio multipiano ed edificio unifamiliare basso. Queste due tipologia sono da considerare come compatibili in quanto rispondenti ad un unico scopo, cioè la relazione tra spazio abitato e natura.
CONTESTO
EXTEMPORE
CATALIZZATORE.PARADIGMA INDIZIARIO.PARADIGMA ORGANIZZATIVO
MATRICE DI TRASFORMAZIONE
> LUMINOSO > Come si buca: grandi vetrate
> SQUADRATO > Come girano gli angoli: angoli retti
> REGOLARE > Come si divide: un apparente disordine in realtà ordinato (la sezione aurea definisce l'equazione della spirale logaritmica, la quale a sua volta definisce la disposizione degli occhi nella coda del pavone): definizione di una regola da replicare sia in pianta che negli alzati
SCHEMA ORGANIZZATIVO
GRIGLIA DI CONGRUENZA
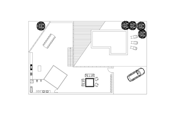
La griglia di congruenza è regolata dalle proporzioni auree. Una seconda griglia, identica alla prima, è stata ruotata di 35°. Questa operazione ha permesso di identificare lo spazio dedicato al patio. Punti di intersezione tra le due griglie sono stati utilizzati per definire la forma della pianta dell’edificio.
EVOLUZIONE PROGETTO
Le grandi vetrate danno luminosità agli ambienti e mettono in relazione diretta edificio e giardino; tali vetrate inoltre circondano anche lo spazio del patio. Le vetrate sono riflettenti, in modo da evitare le conseguenze dovute ad una duratura esposizione solare.
