MARTA_3 
Origini storiche
I primi esempi di case a patio si trovano nella civiltà egizia. Qui gli ambienti si aprivano su spazi aperti interni; l'abitazione però aveva un carattere individuale e le varie parti della costruzione si sviluppavano su di un asse che era il centro generatore di tutto il complesso; il sistema costruttivo era, di solito, ad un piano con terrazza sovrastante.
Nella civiltà greca la casa a patio conserva queste caratteristiche concettuali. All'interno della casa si formano due centri, uno legato alla vita privata e l'altro a quella rappresentativa.
Nelle case a patio degli anni '20 -'30 il patio non è più uno spazio centrale all'abitazione, bensì viene visto come una sorta di giardino di ambito privato accostato al nucleo della casa e protetto da un muro esterno. Saranno poi Mies van der Rohe e Marescotti a studiare l'antica tipologia a patio. La finalità dell'architettura diventa quella di 'catturare' lo spazio esterno. Mies van der Rohe, nel progetto di isolati di case a patio del 1938, usa le lastre di vetro per rappresentare l'effimero limite tra natura ed abitazione, così come i muri in mattoni dei patii ne stabiliscono in maniera inequivocabile l'indipendenza.
Domus greca
Domus romana
Padiglione di Barcellona (particolare del patio), Mies van der Rohe
Consiste nell'identificazione della suddetta griglia basata su proporzioni armoniche tra i vari spazi. Nella costruzione sono partita del patio, sviluppando poi tutta la griglia fino ad arrivare al giardino. In particolare, ho scelto di costruire un rettangolo i cui lati siano uno il doppio dell'altro e l'unità di base è costituita dal raggio L del patio.
Ho deciso di collocare il mio progetto nel contesto naturale del lago.
Il patio, rispetto al giardino e allo spazio interno, si dispone a 45°. Il giardino e l'interno mantengono la direzione ortogonale data dalla griglia. In questa ortogonalità , inserirò delle eccezioni direzionali nella zona opposta al patio.
Come aggettivi caratterizzanti, scelgo i tre del progetto precedente: luminoso, dinamico, forte. Questa scelta nasce dal fatto che,quando ho pensato a questi tre aggettivi, li ho intesi come obiettivi generali da perseguire in ogni progetto, perchè caratteri importanti e fondamentali.
Come catalizzatore, scelgo la Gioconda di Leonardo Da Vinci; infatti in questo terzo progetto siamo partiti dalla volontà di proporre dei rapporti armonici tra gli spazi, tra i quali c'è anche uno spazio naturale che è il giardino. In questo senso, questo ritratto è assolutamente perfetto, dato che si ritrova il rapporto aureo nella disposizione del quadro, nelle dimensioni del viso, nell'area che va dal collo a sopra le mani e in quella che va dalla scollatura dell'abito fino al di sotto delle mani. Inoltre, in questa tela, vi è la testimonianza dello stretto rapporto fra l'uomo e la natura.
Per quanto riguarda il giardino, non ho scelto un vero e proprio catalizzatore, anche se utilizzerò una struttura ad albero, che spiegherò quando avrò elaborato il paradigma organizzativo.
Questo paradigma nasce dall'individuazione, all'interno del ritratto, dei rapporti armonici citati in precedenza, con la conseguente assegnazione dei vari aggettivi.
Propongo separatamente il paradigma organizzativo del giardino per non creare confusione nel disegno. Ora posso approfondire la già citata struttura ad albero che voglio adottare per lo spazio naturale; il giardino si strutturerà su diversi livelli ad altezza crescente e, in particolare: nella parte in prossimità del lago collocherò una zona libera dal verde(= tronco), inteso come alberi, dove passare il tempo libero; nella parte intermedia collocherò terrazzamenti, specchi d'acqua, siepi e connessioni(= rami)quali scale; nella parte più alta si troverà la componente verde più consistente(= chioma), intesa come alberi ad alto fusto.
La relazione visiva, che si instaura tra giardino e casa, consiste nello scoprire a poco a poco lo spazio naturale, raggiungibile solo passando attraverso gli spazi interni. Una volta raggiunta la parte più bassa del giardino, si potrà avere una visione d'insieme della casa.
Inoltre, come si può notare, ho definito tre differenti sequenze giardino-interno-patio.
Connessioni interne
Connessioni esterne
Come regole, posso riproporre quelle già elaborate, perchè mi hanno permesso di raggiungere i miei tre obiettivi nel progetto precedente. Ovviamente, possono nascerne delle altre prettamente legate allo sviluppo di questo secondo progetto.
Matrice 1
Aggettivo: dinamico
Come: si moltiplica
Regola: moltiplico lungo delle rette parallele a un piano fissato. Fatto ciò, affianco alla "zona di moltiplicazione" una zona del tutto priva di elementi moltiplicati, così da creare squilibrio.
Matrice 2
Aggettivo: luminoso
Come: si divide
Regola: utilizzo dei piani verticali disposti a 90°, limitando al minimo gli spazi chiusi totalmente.
Matrice 3
Aggettivo: forte
Come: si buca
Regola: utilizzo parallelepipedi e/o "parallelepipedi" con facce inclinate fra loro formando due angoli di 45°, un angolo di 110° e un angolo di 160° e interseco il parallelepiedo perpendicolarmente alla struttura da bucare. Ricavo il buco per sottrazione boleana.
Matrice 4
Aggettivo: forte
Come: inizia e finisce
Regola: utilizzo materiali differenti e il gioco tra parti cieche e parti bucate.
Matrice 5
Aggettivo: luminoso
Come: si connette
Regola: la connessione deve creare un progressivo restringimento o, di contro, una progressiva espansione. è questo il movimento definito da una spirale. Seguo le proporzioni auree.
Matrice 6
Aggettivo: dinamico
Come: si piega
Regola: creo un angolo di 90° o 120°. L'angolo può essere smussato, qualora sia accostato ad altre superfici.
Matrice 7
Aggettivo: forte
Come: si taglia
Regola: uso un piano verticale e/o orizzontale per tranciare i volumi. Posso tranciare perpendicolarmente al piano o con un'inclinazione di 120°.
Formalizzazione zero
Evoluzione 1
Creazione di terrazzamenti per creare dislivelli sia nel giardino sia nella casa.
Evoluzione 2
Prolungamento di uno dei terrazzamenti e modifica del patio.
Evoluzione 3
Evoluzione 4
Evoluzione 5
Evoluzione 6
Giardino
Terrazzamenti: al livello più alto, alberi ad alto fusto; al livello intermedio, scale affiancate da siepi e piccole cascate d'acqua e spazi per il tempo libero; al livello più basso, una grande vasca d'acqua e molto spazio per il tempo libero. Il giardino è cinto da un muro in cui si aprono delle finestrelle panoramiche. Inoltre, il muro viene "bucato" da un'estremità dell'edificio.
Patio
Semiottagono con semicirconferenza. Nella parte semicircolare ho predisposto delle gradinate al piano terra e un balcone al piano primo che si affaccia sulla vasca d'acqua sottostante che occupa la parte semiottagonale.
Piante
Esempio di posizionamento rispetto alla griglia
Spazi interni 3D
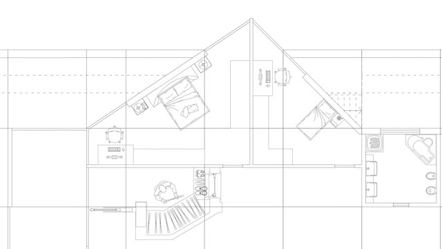
Piano terra
Piano primo
Piano secondo
Resa finale 3D
Dettaglio architettonico significativo
In pianta
Posizionamento rispetto alla griglia
In 3D
Ho scelto questo dettaglio, perchè è interessante ed esplicativo dei miei tre aggettivi in diversi aspetti: 1)il buco che apre il muro di separazione tra giardino e natura circostante; 2)la luce che filtra all'interno dalla vetrata; 3)inclinazione della struttura che da dinamicità ; 4)rapporto diretto con la natura "esterna" dato dall'affaccio delle camere al di fuori del muro di separazione.
Collocazione nell'ambientazione scelta
