Generative Art, Science & Design
Browsing Image: Ambrogio Rudoni_731078
| Image Name: | Ambrogio Rudoni_731078 |
| Created: | Saturday 27 of March, 2010 14:05:57 CET |
| Image size: | 800x270 |
| Image Scale: | Original Size |
| Hits: | 2565 |
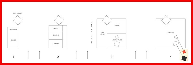
| Description: | questa immagine tenta di soddisfare la seconda richiesta di venerdì, quella di una maggiore esplicitazione delle proporzioni fra gli spazi..purtroppo data la forma della casa che ho in mente, ho dovuto ricorrere alla rappresentazione tramite piante, o qualcosa di simile, che xò, tengo a sottolinearlo, NON SONO (ovviamente) QUALCOSA DI DEFINITIVO |
| Author: | KingbroS |
| Include the image in a tiki page using the following syntax: | |
|
{img id=2896}
|
|
| To include the image in an HTML page: | |
|
<img src="http://128.116.222.10:8080/show_image.php?id=2896" />
|
|
| To link to this page from another tiki page: | |
|
[tiki-browse_image.php?imageId=2896]
|
|
Online Users
80
online users
